方案展示
設計說明
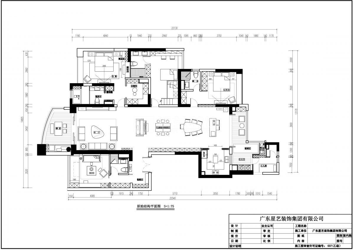
本案是位于番禺劍橋郡,三百多方的大平層。客廳、餐廳的、休閑廳都在一個長形的平面上,所有這幾個功能區(qū)的設計,既要相互貫通又要相對獨立。通過功能家具的劃分,呈現一個大而不空的空間感受。每個房間在設計上都用了簡介的塊面設計手法,讓整個空間干凈、利落。
[展開]-
羅斯梅的其它設計案例
-
簡約風格的其它設計案例
關注我們
分享到
微信

立即預約
在線咨詢
在線客服
公安部備案號 44010602004978號