3D全景
方案展示
設計說明
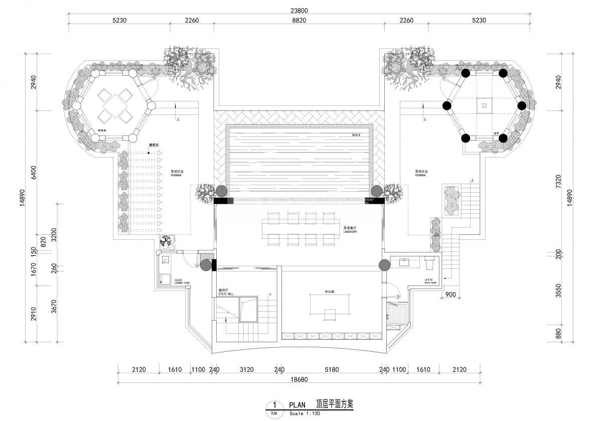
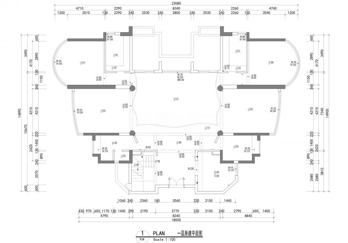
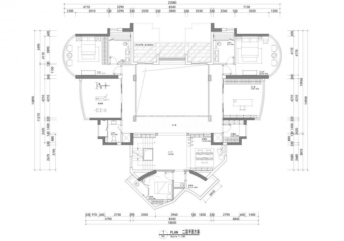
{優雅的空中行宮} 由于珠江帝景有著兩岸優越的地理環境又立于頂層的多層復式大宅再融入有深度的中式文化元素,從而延伸出優雅的空中行宮 的設計主題。在本案的空間布局上講究方正、對稱的布局形式,講究整體的布局和風水格調高雅造型樸素優美,色彩濃厚而成熟。 家俱分兩種一樓用的是傳統的家具,二樓用現代簡潔再輔以字畫、盆景,陶瓷、古玩、屏風等裝飾品,追求的是一種修身、齊家的 生活境界在整體的色彩選擇上以莊重的灰色和木色為主,體現中式文化深沉、厚重的底蘊。
[展開]-
星藝設計師的其它設計案例
-
新中式風格的其它設計案例
裝修預約
- 您的姓名: *
- 聯系方式: *
- 樓盤名稱:
- 建筑面積: m2
- 裝修設想:
- 取消
關注我們
分享到
微信

立即預約
在線咨詢
在線客服
公安部備案號 44010602004978號